Área do Cliente
|
Acesse pelo celular

Cobertura com 3 dormitórios à venda, 154 m² por R$ 600.000,00 - Vila Camilópolis - Santo André/SP

Apartamento Cobertura - Vila Camilópolis Residencial para Venda em Santo André

|
Compartilhe:
Total para Acessórios valores sujeitos a alteração.

IPTU
500,00
Total para Acessórios valores sujeitos a alteração.

Venda

(ITBI, Registro, Escritura e Certidões)
Consulte-nos
Residencial
Finalidade
51395
Referência
3
Dormitórios
2
Suítes
4
Banheiros
2
Garagens
154.00 m²
A. Útil
154.00 m²
A. Total
Descrição do Imóvel

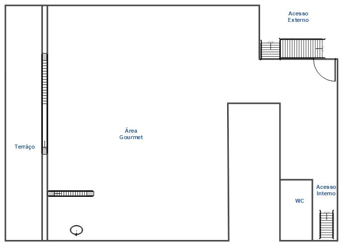
Cobertura á venda na Vila Camilópolis - Santo André/SP.Área:77m²+77m².03 dormitórios sendo duas suítes com sacada horizontal, 01 sala, 01 cozinha com acesso interno á cobertura, 04 banheiro sendo um lavabo e 02 vagas de garagem.Cobertura com área coberta permitindo acesso interno e externo, 01 lavabo, área de serviço, área gourmet, quintal descoberto de 8 x 2mts como terraço.Ótima localização, próximo á supermercado, posto de gasolina, pizzaria, padaria, restaurante e comércios da região.Marque sua visita pelo número 4316-7100 ou WhatsApp: 11 94728-3849.Apriori Imóveis Administração e Consultoria - CRECI: J33616 - CO2333

Vídeo do Imóvel

Simule um Financiamento

Localização Apartamento / Cobertura em Santo André
Total para Acessórios valores sujeitos a alteração.


IPTU
500,00

Total / Mês
500,00



Venda

(ITBI, Registro, Escritura e Certidões)
Consulte-nos

Total
600.000,00

DÚVIDAS SOBRE O IMÓVEL
PREENCHA O FORMULÁRIO


Concordo com os Termos e Privacidade
Imóveis Similares